
















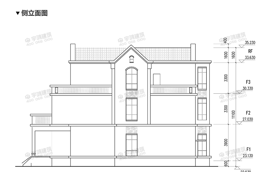
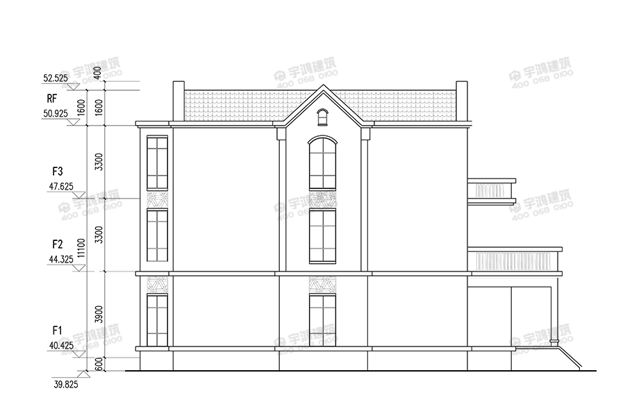
常見問題:
1.關于圖紙的地基計算承載力?
地基承載力暫定為150-180kpa,因每個地方的地質情況不同,在施工前務必請當地有經驗的專業人士進行地質勘察,以確保結構安全,如有疑問,務必提前咨詢。
2.購買成品圖之后,需要修改的問題?
尺寸和平面布局是圖紙的基礎,只要有一個地方要改動,其他專業的圖紙都要修改,工作量很大,所以成品圖紙不提供免費修改,修改的費用咨詢客服另計。
3.關于購買成品圖紙后,圖紙使用問題?
圖紙須經當地審查機構審查通過及取得相關證件后方可用于施工。本圖紙僅供參考。
4.你們店的圖紙是書?還是光盤的?我們怎么得到這些圖紙?
圖紙不是書,而是打印好的成套現成圖紙,拿到即可施工。本店有設計好的成套圖紙出售,直接下單或者聯系客服即可,如果您不滿意我們還提供私人定制。
5.關于造價會不會超出我的預算?
我們的造價師是按照包工包料預估的全國平均價格,不包括基礎打樁和室內裝修成本。雖然各地的人工和材料價格會有所不同,總的造價會有所差異,但只要管理的好,實際造價一般不會與預算相差太離譜。
6.按圖紙能不能建出效果圖一樣的外觀?
影響建房效果的因素很多,施工質量和工藝、裝飾材料的選材等,都會造成一定的差異。在不影響結構的情況下,業主可能會根據自己的實際需求作更改,因此房子的實景圖可能會與設計效果圖略有差異,希望得到您的理解。
7.施工人員看的懂么?
我們的圖紙都是專門為農村建房服務的,施工圖里有詳細的尺寸和做法,一般施工人員都能看的懂,如有不懂之處可以撥打圖紙上面售后服務電話,隨時提供后期施工指導。












